Циліндр відноситься до класу зламостійких.
Тип секрету – дисковий.
Особливість даного циліндра – дискова зносостійка система та запатентований інтерактивний елемент на ключі.
Технологію запатентовано до 2031 року.
Секретність циліндрів складає 2 млрд кодових комбінацій.
Системи захисту циліндра ABLOY Protec 2:
Циліндр замка – елемент дверей, який має створити МАКСИМАЛЬНИЙ захист проти вандального та інтелектуального проникнення в приміщення.
В циліндрах даної моделі реалізовано наступні захисти.
1. Захист проти переламування.


В корпус вмонтований стальний стержень який робить циліндр міцнішим і захищає корпус від переламування та перегинання.
Він не дає можливості пошкодити циліндр в місці кріплення та виламати його із замка.
2. Захист проти свердління.

Існує два варіанти корпусу із
гартованою та негартованою зовнішньою стороною.
Гартована сторона значно збільшує міцність циліндра проти свердління.
З такою серцевиною броненакладку використовують рідше.
У варіанті із негартованою стороною
броненакладка є обов'язковою, щоб збільшити міцність та рівень захисту.
Також в кожній серцевині встановлюється гартований диск, який розміщується першим та не дає просвердлити інші диски.
3. Захист проти бампінгу.

Циліндри ABLOY Protec 2 неможливо відкрити даним методом.
Дана серцевина не піддається відкриттю бампінгом через відсутність підпружинених вертикальних пінів, на відміну від пінових серцевин.
4. Захист проти відмичок.

Система дисків ABLOY Protec 2 виключає варіант інтелектуального злому.
Циліндр не піддається відкриттю відмичками, оскільки в корпусі знаходиться 12 кодових дисків, які неможливо одночасно виставити у правильне кодове положення.
Також несанкціонованому відкриванню перешкоджає інтерактивний механізм (кулька на ключі), завданням якого є визначення "свого" ключа.
Тобто якщо навіть правильно виставити всі кодові диски, але без ключа – циліндр провернути не вдасться.
5. Захист проти дублювання ключа.
Дублікат ключа для циліндра нарізається тільки в офіційних сервісних центрах і тільки при наявності кодової картки власника.
Також профіль ключа захищений запатентованим інтерактивним елементом.
Ви на 100% захищені від того, що хтось може взяти ключ і без Вашої згоди зробить копію.
Особливості циліндра ABLOY Protec 2:
- Клас секретності – 4, Extra Security.
- Запатентована ключова платформа ABLOY Protec 2 до 2031року.
- 2R-запатентована технологія нарізки ключа у двох радіусах.
- Відповідає вимогам міжнародного стандарту ISO 9001.
- Функція (Emergency) – яка дає можливість відкрити циліндр із зовнішнього боку в разі, якщо з внутрішньої сторони у нього вставлений ключ.
- Функція AWS (Anti-Wear System) – сукупність елементів в циліндрі та ключі, які мінімізують ефект зносу при роботі циліндра.
- Система Modular – подовження корпусу від базового розміру (31х31мм) з кроком 5 мм до розміру 260 (130х130) мм.
- Матеріал корпусу – латунь.
- Виготовлення дубліката ключа – тільки по кодовій картці власника.
- Гарантія – 12 місяців.
- Довічне сервісне обслуговування.
Комплектація:
- Циліндр
- 3 ключі
- Кодова картка власника
- Гвинт для кріплення
Варіанти корпусу:
- Ключ - ключ
- Ключ - вороток
- Ключ - половинка
- Ключ-шток


Кольорова обробка циліндра:


- Хром полірований
- Хром матовий
- Латунь полірована
- Латунь матова
Колір воротка (тумблера):
- Чорна фарба
- Нержавіюча сталь матова
- Хром полірований
- Хром сатин
- Латунь матова
- Латунь полірована






Додаткові можливості циліндра ABLOY Protec 2:
Перевагою циліндрів даного класу є можливість збільшення розміру та сервісного обслуговування.
- Модульна система
- Перекодування.
- Створення системи «Один ключ».
- Створення системи «Майстер-ключ».
1.Модульна система.
Система "Modular", дає можливість подовжити циліндр від базового розміру, (31х31мм) з кроком 5 мм, до розміру 260 (130х130) мм.
Переїжджаючи вам не доведеться витрачати кошти та час на вибір іншого циліндра.
Потрібно тільки змінити подовження та отримати потрібний розмір, це одна із переваг цієї моделі, яка значно вирізняє її серед інших.
Ви можете змінити розмір свого циліндра ABLOY Protec 2 в нашому сервісному центрі.
2. Перекодування.
Якщо загубили ключі, або є інша потреба замінити секрет на дверях, даний циліндр можна перекодувати.
Наш сервісний центр повністю замінить внутрішній секрет і видасть нову кодову картку з комплектом ключів.
Старі ключі не будуть відмикати циліндр.
3. Система «Один ключ».

Декілька циліндрів можна відмикати одним ключем.
При цьому секретність не знижується!
Наприклад, для особистого користування, можна одним ключем відмикати хвіртку, вхідні двері будинку, гараж і не носити зв’язку з ключів.
4. Система «Майстер-ключ».
Декілька циліндрів утворюють ієрархію відкривання.
Наприклад, маємо 5 дверей.
Один ключ (майстер-ключ) буде відчиняти всі двері.
Інший (другого рівня) – тільки троє дверей.
А ключі найнижчого рівня – тільки одні свої двері.
Такі системи популярні для комерційних приміщень.
Майстер-системи створюємо індивідуально під конкретний об'єкт.
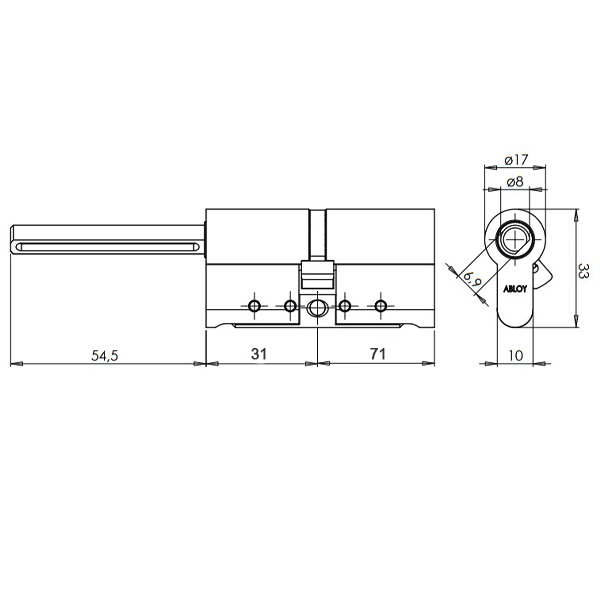
Купити циліндр ABLOY Protec2 102Т (71*31T) зі штоком хром полірований в роздріб і гуртом можна на нашому сайті.
Ми опрацюємо Ваше замовлення протягом 15 хвилин.
Відправляємо товар у Київ, Харків, Дніпро, Одесу, Львів, Вінницю та будь-який інший населений пункт України за 1-2 дні.